Globcon Oasis

Stylish exterior and a comfortable living inside. A never seen elegant elevation just to give you that extra edge over others

globcon

Globcon welcoming you

The company has constructed a wide variety of structures for residential and commercial buildings. GGI has been serving in real estate sector over 40 years.

It was fundamental for us to achieve highest level of excellence and ethical practices by delivering Quality construction with passion and innovation.

Specification

Flooring

Granamite big size tiles in livingroom, dining space, kitchen & all bed rooms.

Structure

Earthquake resistance RCC frame structure.

Entrance Foyer

Elegant & modern double hight entrance foyer & waiting area.

Elevators

Two fully automatic passenger elevators of Schindler / Kone / equivalent brand.

Security

video door phone with intercom facilities with connectivity from entrance foyer each flat lifts & security cabin.

Kitchen

Granite kitchen platform with a sink off Carysil / equivalent brand.

Gas connection on the platform.

Toilets and plumbing

Decorative high quality vitrified tiles up to lintel with standard quality sanitary ware of Kohler or equivalent brand & C.P.

Store

Adequate granite rack with glazed tile dado.

Door & windows

Well design laminated door with wooden framed with premium make lock & fittings.

Flush door with granite frame in all utility area.

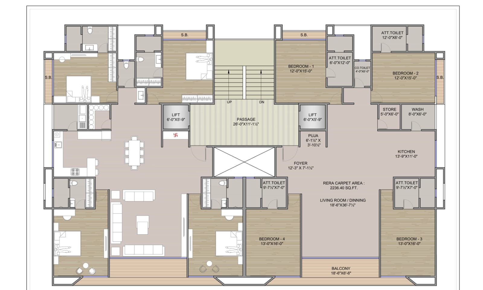
Layout & Plans

TYPICAL FLOOR PLAN

amenities layout

3d view plan

single building plan

Latest Projects

other-pro-img

Stylish exterior and a comfortable living inside. A never seen elegant elevation just to give you that extra edge over others.Know more

other-pro-img

Stylish exterior and a comfortable living inside. A never seen elegant elevation just to give you that extra edge over others.Know more

other-pro-img

Using different shapes, colors and materials we have offered architectural pieces that could also serve as landmark, over and above residences.Know more

Request for a quote

Let us know your requirements, we will get back to you in the next 24 hours.

Your name
Phone number
Email Address
Project
Message